top of page
사연의뢰-No.1
CONNECT TO NATURE
'거실'과 '숲'사이, "집'으로서 '잇다'
(건물주: 김*현 님)


_1_edited.jpg)
_1_1_edited.jpg)
_2_1_edited.jpg)
_3_1.jpg)
디자인 설명
* 디자인 주안점 :
숲(남쪽, 낮은 야산)과의 끊임없는 관계맺기 개념으로, 언제든 바라볼 수 있고, 숲 향기를 냄새 맡을 수 있는 주생활공간(거실, 침실, 주방)을 숲방향으로 배치 함.
집과 숲사이 1층 데크마당을 삽입하여 놀이, 식사, 휴식공간의 경계를 허물고, 폴딩도어를 설치하여 숲이 거실 깊숙한 곳 까지 연장되어 들어올 수 있도록 계획 함.
2층, 3층 경사지붕에는천정이 없는 하늘창을 계획하여 하늘, 구름, 별들의 이동을 침실공간에서 체험할 수 있게하였고, 아이들의 상상력(물리적 공간의 경계를 뛰어넘는) 확장을 의도 함.
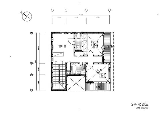
2층 거실영역은 멀티룸으로 구성하여, 거실, 서재, 미니전시장 등 다양한 용도로 활용하여 3층 집의 원활한 공간순환 기능을 유도 함.
향후 아이들의 성장 및 그에따른 생활패턴의 변화를 고려하여, 가변형 디자인(오픈 플랜, 높은 층고)를 적용하고 시간흐름과 공간변화의 유기적인 조화를 제안 함.
bottom of page
